Robinia

Projekt został stworzony z myślą o 2-3 osobowej rodzinie jako całoroczny dom jednorodzinny lub
dom letniskowy.

Cena 3600 PLN

Powierzchnia użytkowa:             69,27 m 2
Powierzchnia zabudowy:            94,5 m 2
Kubatura:                                           520 m 3
Minimalne wymiary działki:      21,48×17,08 m
Wysokość w kalenicy:                  5,85 m
Kąt nachylenia dachu głównego: 30⁰
Kąt nachylenia dachu niskiego:       3⁰

Informacje o projekcie – warunki techniczne na rok: 2021

Parametry budynku

Pow. użytkowa: 69,27 m 2
Ilość pokoi: 3
Powierzchnia zabudowy: 94,5 m 2

Min. szerokość działki: 17,08 m 2
Min. długość działki: 21,48 m 2
Wysokość kalenicy: 5,85 m

Kąt nachylenia dachu głównego: 30⁰
Kąt nachylenia dachu niskiego: 3⁰

Powierzchnia dachu głównego: 105 m 2
Powierzchnia dachu niskiego: 20 m 2
Kubatura: 520 m 3

Ogrzewanie:
Pompa ciepła z wbudowanym zasobnikiem
Instalacja fotowoltaiczna
Ogrzewanie podłogowe we wszystkich
pomieszczeniach
Wentylacja: Mechaniczna

KONSTRUKCJA
  • Zgodna z normami EUROKOD
ELEWACJA
  • Deska elewacyjna, tynk lub blacha na rąbek
FUNDAMENTY
  • Tradycyjne: ławy i stopy żelbetowe
ŚCIANY
  • Szkieletowe drewniane: ściany zewnętrzne wypełnione izolacją termiczną z zewnętrznym poszyciem z płyty MFP 12mm
DACH
  • pokrycie dachu – blacha na rąbek na sztywnym poszyciu np. Rheizink RAL 7016
  • konstrukcja dachu zaprojektowano w postaci drewnianych wiązarów kratowych, dla I strefy wiatrowej i II strefy śniegowej

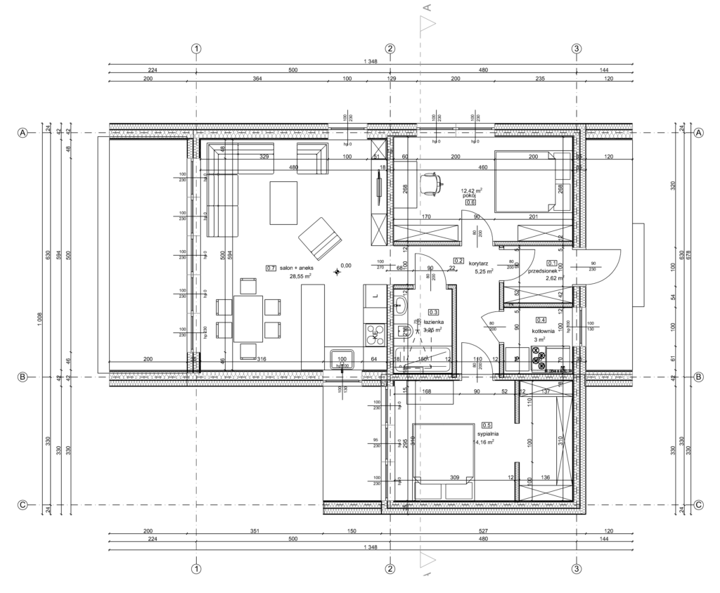
Rozplanowanie projektu

RZUT PARTERU
69,27 m 2

01 PRZEDSIONEK 2,62 m 2
02 KORYTARZ 5,26 m 2
03 ŁAZIENKA 3,25 m 2
04 KOTŁOWNIA 3,00 m 2
05 POKÓJ 14,16 m 2
06 POKÓJ 12,42 m 2
07 SALON + JADALNIA 28,56 m 2

Opis projektu

ROBINIA to projekt domu jednorodzinnego parterowego wykonanego w technologii szkieletowej
drewnianej. Bryła budynku łączy prostotę, funkcjonalność i elegancję, a dzięki swojemu
minimalizmowi delikatnie wtapia się w otoczenie.

Projekt został stworzony z myślą o 2-3 osobowej rodzinie jako całoroczny dom jednorodzinny lub
dom letniskowy.

W budynku zaprojektowano przestronną część dzienną z dużymi przeszkleniami oraz wysokimi
sufitami, dzięki którym salon połączony z nowoczesną kuchnią i jadalnią jest pełen światła i otwiera
przestrzeń na ogród.

W domu przewidziano także dwie sypialnie, jedna z nich wyróżnia się całościennymi oknami i
wydzieloną garderobą. Łazienkę pełną naturalnego światła zapewnia okno dachowe.

W kotłowni
przewidziano m.in. pompę ciepła, stację uzdatniania wody czy pralkę.
Uczucie domowej i przytulnej atmosfery zapewnia drewniane sklepienie.

Nastroju domowego ogniska na pewno nie zepsują rachunki za energię elektryczną czy gaz.

W budynku mieszkalnym jednorodzinnym instalacje ogrzewcze, ciepłej wody użytkowej, również oświetlenia wbudowanego, zostały zaprojektowane w taki sposób, aby ilość ciepła i energii elektrycznej, potrzebnych do użytkowania budynku zgodnie z jego przeznaczeniem, można było
utrzymać na racjonalnie niskim poziomie.

Opis projektu

W budynku mieszkalnym jednorodzinnym instalacje ogrzewcze, ciepłej wody użytkowej, również
oświetlenia wbudowanego, zostały zaprojektowane w taki sposób, aby ilość ciepła i energii
elektrycznej, potrzebnych do użytkowania budynku zgodnie z jego przeznaczeniem, można było
utrzymać na racjonalnie niskim poziomie.
Wartości współczynników dla poszczególnych rodzajów przegród budowlanych ( min wg 2021 ):

  •  posadzka na gruncie U=0,30 W/m2K
  •  ściana zewnętrzna U=0,20 W/m2K
  • dach U=0,15 W/m2K
  • stolarka okienna U=0,9 W/m2K
  • stolarka drzwiowa U=1,3W/m2K

Współczynnik przenikania ciepła dla przegród budowlanych jest zgodny z przepisami techniczno-
budowlanymi.