Platan

PLATAN to dom
odpowiadający potrzebom 5-6 osobowej rodziny. W strefie dziennej oprócz przestronnego salonu
połączonego z jadalnią i kuchnią, jest także pokój gościnny (pokoju dla seniora, gabinetu), łazienki i
garderoby (schowka, spiżarni).

Cena 6600 PLN

Powierzchnia użytkowa:                 135,69 m 2
Powierzchnia zabudowy:                164,0 m 2
Kubatura:                                               776 m 3
Minimalne wymiary działki:          26,77×19,68 m
Wysokość w kalenicy:                      5,85 m
Kąt nachylenia dachu głównego:30⁰
Kąt nachylenia dachu niskiego:    2,86⁰

Informacje o projekcie – warunki techniczne na rok: 2021

Parametry budynku

Pow. użytkowa: 135,69 m 2
Ilość pokoi: 6
Powierzchnia zabudowy: 164,00 m 2

Min. szerokość działki: 19,68 m 2
Min. długość działki: 26,77 m 2
Wysokość kalenicy: 5,85 m

Kąt nachylenia dachu głównego: 30⁰
Kąt nachylenia dachu niskiego: 2,86⁰

Powierzchnia dachu głównego: 168 m 2
Powierzchnia dachu niskiego: 15 m 2
Kubatura: 776 m 3

Ogrzewanie:
Pompa ciepła z wbudowanym zasobnikiem
Instalacja fotowoltaiczna
Ogrzewanie podłogowe we wszystkich
pomieszczeniach
Wentylacja: Mechaniczna

KONSTRUKCJA
  • Zgodna z normami EUROKOD
ELEWACJA
  • Deska elewacyjna, tynk lub blacha na rąbek
FUNDAMENTY
  • Tradycyjne: ławy i stopy żelbetowe
ŚCIANY
  • Szkieletowe drewniane: ściany zewnętrzne wypełnione izolacją termiczną z zewnętrznym poszyciem z płyty MFP 12mm
DACH
  • pokrycie dachu – blacha na rąbek na sztywnym poszyciu np. Rheizink RAL 7016
  • konstrukcja dachu zaprojektowano w postaci drewnianych wiązarów kratowych, dla I strefy wiatrowej i II strefy śniegowej

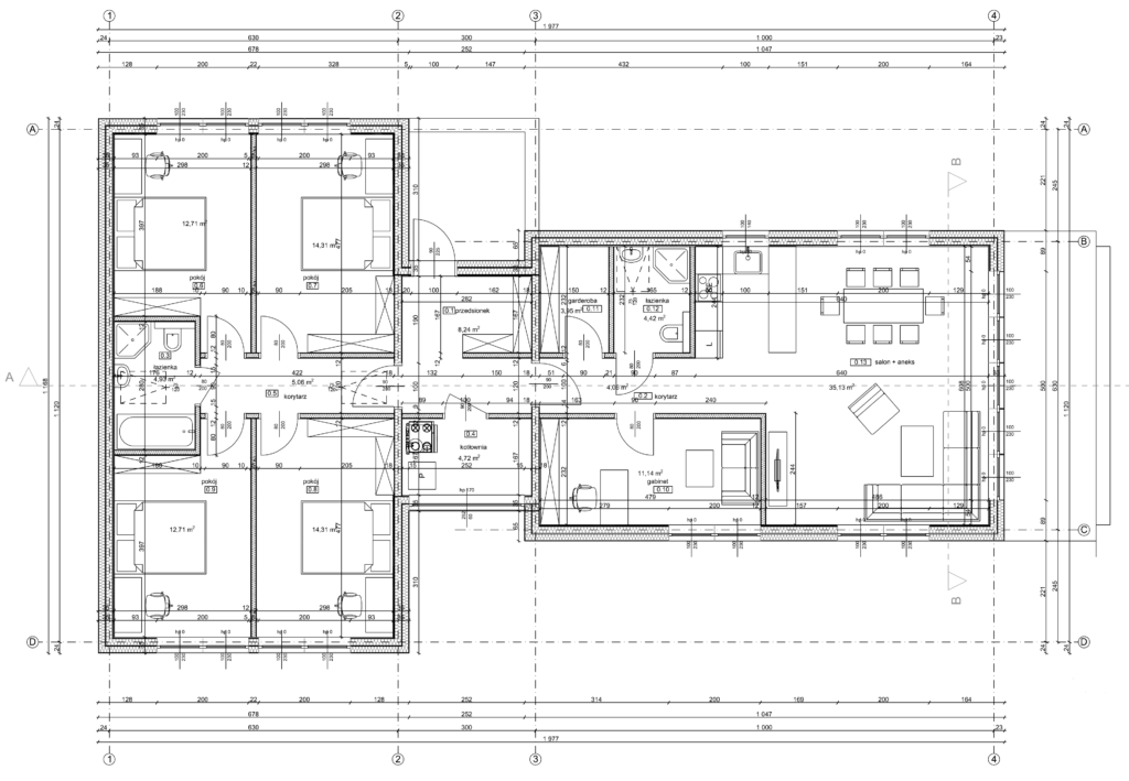
Rozplanowanie projektu

RZUT PARTERU
135,69 m 2

01 PRZEDSIONEK 8,24 m 2
02 KORYTARZ 4,06 m 2
03 ŁAZIENKA 4,93 m 2
04 KOTŁOWNIA 4,72 m 2
05 KORYTARZ 5,06 m 2
06 POKÓJ 10,77 m 2
07 POKÓJ 14,88 m 2
08 POKÓJ 14,88 m 2
09 POKÓJ 12,42 m 2
10 GABINET 11,14 m 2
11 GARDEROBA 3,95 m 2
12 ŁAZIENKA 4,42 m 2
13 SALON + JADALNIA 35,13 m 2

Opis projektu

PLATAN to projekt domu jednorodzinnego w konstrukcji szkieletowej, bez podpiwniczenia, w którym zastosowano wyraźne oddzielenie strefy dziennej od nocnej.

Obie strefy znajdują się w dwóch osobnych budynkach typu „nowoczesna stodoła”. Strefy połączono łącznikiem z płaskim dachem, który stanowi przedsionek pozostający do zagospodarowania.

PLATAN to dom odpowiadający potrzebom  5-6 osobowej rodziny. W strefie dziennej oprócz przestronnego salonu połączonego z jadalnią i kuchnią, jest także pokój gościnny (pokoju dla seniora, gabinetu), łazienki i
garderoby (schowka, spiżarni).

Pomieszczenia tworzą razem piękną i funkcjonalną przestrzeń,
dzięki wysokimi sufitom i dużym nowoczesnym przeszkleniom, strefa dzienna jest jasna i płynnie połączona z ogrodem.

W części nocnej zaprojektowano cztery sypialnie, drugą łazienkę z oknem dachowym oraz nietuzinkowy korytarz z wmontowanym oknem dachowym.

Duża kotłownia mieści pralkę, stacje uzdatniania wody, stojącą pompę ciepła współdziałającą z wentylacją. Zamontowana pompa ciepła
i ogniwa fotowoltaiczne pozwolą nie martwić się o rachunki z koncernów energetycznych.

Opis projektu

W budynku mieszkalnym jednorodzinnym instalacje ogrzewcze, ciepłej wody użytkowej, również
oświetlenia wbudowanego, zostały zaprojektowane w taki sposób, aby ilość ciepła i energii
elektrycznej, potrzebnych do użytkowania budynku zgodnie z jego przeznaczeniem, można było
utrzymać na racjonalnie niskim poziomie.
Wartości współczynników dla poszczególnych rodzajów przegród budowlanych ( min wg 2021 ):

  • posadzka na gruncie U=0,30 W/m2K
  • ściana zewnętrzna U=0,20 W/m2K
  • dach U=0,15 W/m2K
  • stolarka okienna U=0,9 W/m2K
  • stolarka drzwiowa U=1,3W/m2K

Współczynnik przenikania ciepła dla przegród budowlanych jest zgodny z przepisami techniczno-
budowlanymi.