
Kasztanowiec
Projekt w całości stworzony z myślą o dla 3-4 osobowej rodziny poszukującej oszczędnego, ale zarazem
niebanalnego domu.
Cena 5600 PLN
Powierzchnia użytkowa: 106,03 m 2
Powierzchnia zabudowy: 131,0 m 2
Kubatura: 551 m 3
Minimalne wymiary działki: 23,48×18,08 m
Wysokość w kalenicy: 5,85 m
Kąt nachylenia dachu głównego: 30⁰
Kąt nachylenia dachu niskiego: 2,86⁰
Informacje o projekcie – warunki techniczne na rok: 2021
Parametry budynku
Pow. użytkowa: 106,037 m 2
Ilość pokoi: 4
Powierzchnia zabudowy: 131,00 m 2
Min. szerokość działki: 18,08 m 2
Min. długość działki: 23,48 m 2
Wysokość kalenicy: 5,85 m
Kąt nachylenia dachu głównego: 30⁰
Kąt nachylenia dachu niskiego: 2,86⁰
Powierzchnia dachu głównego: 119 m 2
Powierzchnia dachu niskiego: 2,86 m 2
Kubatura: 551 m 3
Ogrzewanie:
Pompa ciepła z wbudowanym zasobnikiem
Instalacja fotowoltaiczna
Ogrzewanie podłogowe we wszystkich
pomieszczeniach
Wentylacja: Mechaniczna
KONSTRUKCJA
- Zgodna z normami EUROKOD
ELEWACJA
- Deska elewacyjna, tynk lub blacha na rąbek
FUNDAMENTY
- Tradycyjne: ławy i stopy żelbetowe
ŚCIANY
- Szkieletowe drewniane: ściany zewnętrzne wypełnione izolacją termiczną z zewnętrznym poszyciem z płyty MFP 12mm
DACH
- pokrycie dachu – blacha na rąbek na sztywnym poszyciu np. Rheizink RAL 7016
- konstrukcja dachu zaprojektowano w postaci drewnianych wiązarów kratowych, dla I strefy wiatrowej i II strefy śniegowej
Rozplanowanie projektu
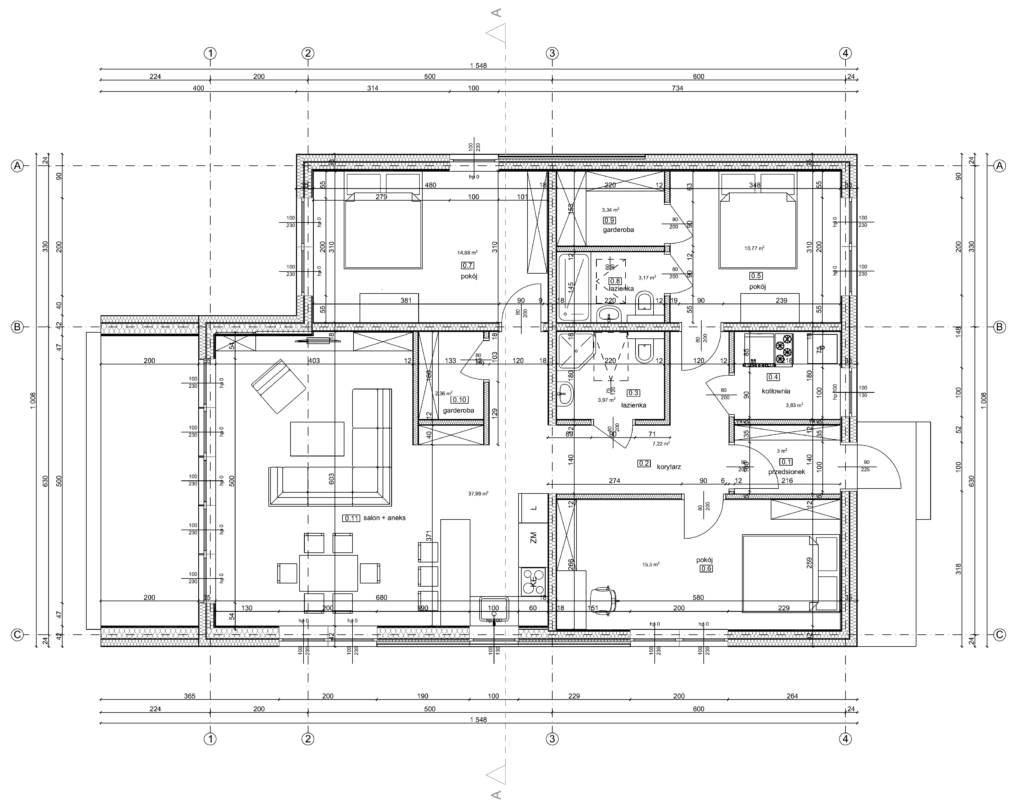
RZUT PARTERU
106,03 m 2
01 PRZEDSIONEK 3,00 m 2
02 KORYTARZ 7,22 m 2
03 ŁAZIENKA 3,97 m 2
04 KOTŁOWNIA 3,83 m 2
05 POKÓJ 10,77 m 2
06 POKÓJ 15,50 m 2
07 POKÓJ 14,88 m 2
08 ŁAZIENKA 3,17 m 2
09 GARDEROBA 3,34 m 2
10 GARDEROBA 2,36 m 2
11 SALON + JADALNIA 37,99 m 2
Opis projektu
KASZTANOWIEC to projekt domu parterowego bez podpiwniczenia, wykonany w konstrukcji szkieletowej, przeznaczony dla 3-4 osobowej rodziny poszukującej oszczędnego, ale zarazem niebanalnego domu.
Aby zapewnić uczucie przestrzeni w domu o relatywnie małej powierzchni, salon, jadalnia i kuchnia są pomieszczeniami otwartymi z wysokimi sufitami i wielkim oknem wychodzącym na ogród.
Trzy sypialnie zapewnią prywatność każdemu domownikowi, dla jednej z sypialni przewidziano prywatną łazienkę, bardzo jasną dzięki zastosowaniu okna dachowego.
Dodatkowa łazienka jest
szczególnie przydatna w trakcie kilkudniowych wizyt rodziny czy przyjaciół.
Przy salonie wydzielono osobne pomieszczenie, które można przeznaczyć na schowek, spiżarnię czy kolejne pomieszczenie na
garderobę.
W dużej kotłowni mieści się pralka, stacja uzdatniania wody i stojąca pompa ciepła współdziałającą z wentylacją.
Ten wyjątkowy projekt domu charakteryzuje się funkcjonalnym układem pomieszczeń, nowoczesną formą bryły i małym zapotrzebowaniem na energię na etapie mieszkania.
Opis projektu
W budynku mieszkalnym jednorodzinnym instalacje ogrzewcze, ciepłej wody użytkowej, również
oświetlenia wbudowanego, zostały zaprojektowane w taki sposób, aby ilość ciepła i energii
elektrycznej, potrzebnych do użytkowania budynku zgodnie z jego przeznaczeniem, można było
utrzymać na racjonalnie niskim poziomie.
Wartości współczynników dla poszczególnych rodzajów przegród budowlanych ( min wg 2021 ):
- posadzka na gruncie U=0,30 W/m2K
- ściana zewnętrzna U=0,20 W/m2K
- dach U=0,15 W/m2K
- stolarka okienna U=0,9 W/m2K
- stolarka drzwiowa U=1,3W/m2K
Współczynnik przenikania ciepła dla przegród budowlanych jest zgodny z przepisami techniczno-
budowlanymi.





