
Gruczejnik
Projekt przewiduje
wykonanie domu jednorodzinnego w technologii szkieletowej, parterowy i bez podpiwniczenia.
Cena 4300 PLN
Powierzchnia użytkowa: 88,17 m 2
Powierzchnia zabudowy: 115,0 m 2
Kubatura: 726 m 3
Minimalne wymiary działki: 22,58×22,58 m
Wysokość w kalenicy: 5,85 m
Kąt nachylenia dachu głównego: 30⁰
Informacje o projekcie – warunki techniczne na rok: 2021
Parametry budynku
Pow. użytkowa: 88,17 m 2
Ilość pokoi: 4
Powierzchnia zabudowy: 115,00 m 2
Min. szerokość działki: 22,58 m 2
Min. długość działki: 22,58 m 2
Wysokość kalenicy: 5,85 m
Kąt nachylenia dachu głównego: 30⁰
Powierzchnia dachu głównego: 169 m 2
Kubatura: 726 m 3
Ogrzewanie:
Pompa ciepła z wbudowanym zasobnikiem
Instalacja fotowoltaiczna
Ogrzewanie podłogowe we wszystkich
pomieszczeniach
Wentylacja: Mechaniczna
KONSTRUKCJA
- Zgodna z normami EUROKOD
ELEWACJA
- Deska elewacyjna, tynk lub blacha na rąbek
FUNDAMENTY
- Tradycyjne: ławy i stopy żelbetowe
ŚCIANY
- Szkieletowe drewniane: ściany zewnętrzne wypełnione izolacją termiczną z zewnętrznym poszyciem z płyty MFP 12mm
DACH
- pokrycie dachu – blacha na rąbek na sztywnym poszyciu np. Rheizink RAL 7016
- konstrukcja dachu zaprojektowano w postaci drewnianych wiązarów kratowych, dla I strefy wiatrowej i II strefy śniegowej
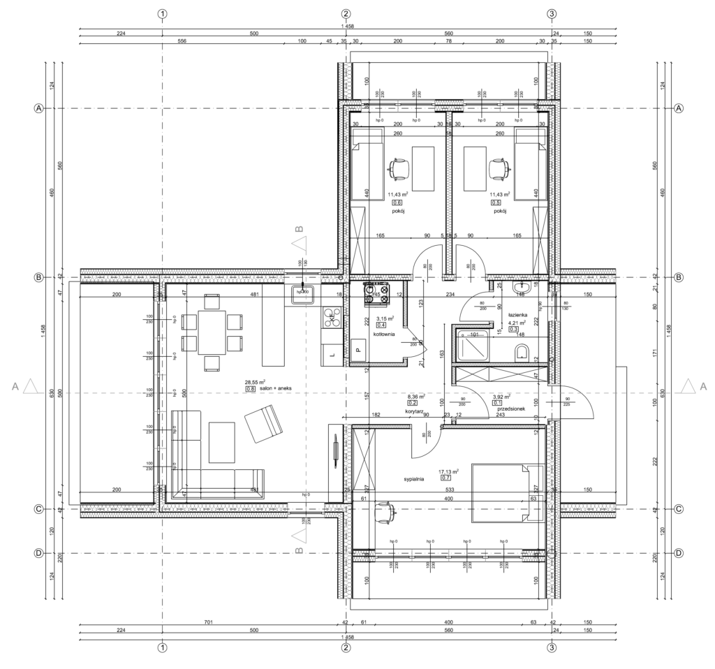
Rozplanowanie projektu
RZUT PARTERU
106,03 m 2
01 PRZEDSIONEK 3,92 m 2
02 KORYTARZ 8,36 m 2
03 ŁAZIENKA 4,21 m 2
04 KOTŁOWNIA 3,15 m 2
05 POKÓJ 11,43 m 2
06 POKÓJ 11,43 m 2
07 POKÓJ 11,43 m 2
08 SALON + JADALNIA 28,55 m 2
Opis projektu
Cechą wyróżniającą projekt GRUJECZNIK to dwie przenikające się bryły. Projekt przewiduje wykonanie domu jednorodzinnego w technologii szkieletowej, parterowy i bez podpiwniczenia.
W strefie dziennej dominuje otwarta przestrzeń salonu, jadalni i kuchni, nad pomieszczeniami zaprojektowano wysokie sufity wykończone drewnem, które jednocześnie zapewniają potęgują poczucie przestrzeni jak i nadają naturalnego ciepła.
Przeszklenia na całej ścianie wychodzącej na
taras daje wrażenie płynnego połączenia wnętrza budynku z tarasem.
Trzy sypialnie, łazienka z oknem oraz kotłownię mieszczącą pralkę, stacje uzdatniania wody, stojącą
pompę ciepła współdziałającą z wentylacją zostały tak rozplanowane aby dom był funkcjonalny,
komfortowy i tani w utrzymaniu.
Zamontowane na dachu panele PV, bardzo dobra
termoizolacyjność i pompa ciepła pozwolą maksymalnie zmniejszyć koszty ogrzewania.
Projekt dedykowany jest 3-4 osobowej rodzinie poszukującej nowoczesnego i oszczędnego domu,
łączącego minimalizm z funkcjonalnością i wygodą.
Opis projektu
W budynku mieszkalnym jednorodzinnym instalacje ogrzewcze, ciepłej wody użytkowej, również
oświetlenia wbudowanego, zostały zaprojektowane w taki sposób, aby ilość ciepła i energii
elektrycznej, potrzebnych do użytkowania budynku zgodnie z jego przeznaczeniem, można było
utrzymać na racjonalnie niskim poziomie.
Wartości współczynników dla poszczególnych rodzajów przegród budowlanych ( min wg 2021 ):
- posadzka na gruncie U=0,30 W/m2K
- ściana zewnętrzna U=0,20 W/m2K
- dach U=0,15 W/m2K
- stolarka okienna U=0,9 W/m2K
- stolarka drzwiowa U=1,3W/m2K
Współczynnik przenikania ciepła dla przegród budowlanych jest zgodny z przepisami techniczno-
budowlanymi.




