
Ambrowiec
Projekt AMBROWIEC powstał z myślą o rodzinie 5-6 osobowej. Jest to dom wykonany w
konstrukcji szkieletowej, bez podpiwniczenia, w którym zastosowano wyraźne oddzielenie strefy
dziennej od nocnej.
Cena 5600 PLN
Powierzchnia użytkowa 156,75 m 2
Powierzchnia zabudowy: 189,20 m 2
Kubatura: 872 m 3
Minimalne wymiary działki:24,52×22,88 m
Wysokość w kalenicy: 5,85 m
Kąt nachylenia dachu głównego:30⁰
Kąt nachylenia dachu niskiego: 2,86⁰
Informacje o projekcie – warunki techniczne na rok: 2021
Parametry budynku
Pow. użytkowa: 156,75 m 2
Ilość pokoi: 5
Powierzchnia zabudowy: 189,20 m 2
Min. szerokość działki: 22,88 m 2
Min. długość działki: 24,52 m 2
Wysokość kalenicy: 5,85 m
Kąt nachylenia dachu głównego: 30⁰
Powierzchnia dachu głównego: 193 m 2
Powierzchnia dachu niskiego: 11 m 2
Kubatura: 872 m 3
Ogrzewanie:
Pompa ciepła z wbudowanym zasobnikiem
Instalacja fotowoltaiczna
Ogrzewanie podłogowe we wszystkich
pomieszczeniach
Wentylacja: Mechaniczna
KONSTRUKCJA
- Zgodna z normami EUROKOD
ELEWACJA
- Deska elewacyjna, tynk lub blacha na rąbek
FUNDAMENTY
- Tradycyjne: ławy i stopy żelbetowe
ŚCIANY
- Szkieletowe drewniane: ściany zewnętrzne wypełnione izolacją termiczną z zewnętrznym poszyciem z płyty MFP 12mm
DACH
- pokrycie dachu – blacha na rąbek na sztywnym poszyciu np. Rheizink RAL 7016
- konstrukcja dachu zaprojektowano w postaci drewnianych wiązarów kratowych, dla I strefy wiatrowej i II strefy śniegowej
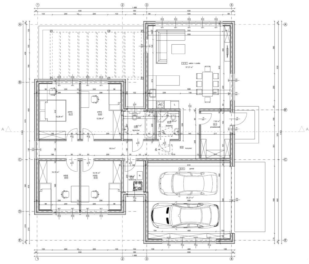
Rozplanowanie projektu
RZUT PARTERU 156,75 m 2
01 PRZEDSIONEK 7,62 m 2
02 KOYTARZ 18,9 m 2
03 ŁAZIENKA 3,35 m 2
04 KOTŁOWNIA 3,38 m 2
05 POKÓJ 10,76 m 2
06 POKÓJ 10,76 m 2
07 POKÓJ 12,28 m 2
08 POKÓJ 12,36 m 2
09 ŁAZIENKA 5,11 m 2
10 SALON + JADALNIA 37,37 m 2
11 GARAŻ 35,27 m 2
Opis projektu
Projekt AMBROWIEC powstał z myślą o rodzinie 5-6 osobowej. Jest to dom wykonany w konstrukcji szkieletowej, bez podpiwniczenia, w którym zastosowano wyraźne oddzielenie strefy
dziennej od nocnej.
Obie strefy znajdują się w dwóch osobnych budynkach, połączonych ze sobą
łącznikiem z płaskim dachem. W łączniku zaprojektowano przestronną łazienkę i kotłownię.
W części dziennej zaprojektowano salon połączony z jadalnią i kuchnią. Pomieszczenia tworzą razem piękną i funkcjonalną przestrzeń, dzięki wysokimi sufitom i dużym nowoczesnym przeszkleniom, strefa
dzienna jest jasna i płynnie połączona z ogrodem.
Przy salonie zaprojektowano łazienkę z oknem
dachowym oraz przestronny przedsionek. W bryle budynku zawierającej część dzienną, znajduje się
również garaż dwustanowiskowy posiadający osobną zaizolowaną konstrukcję szkieletową
drewnianą.
W części nocnej znajdują się cztery sypialnie. Dach dwuspadowy pozwoli uniknąć
mostków termicznych i zamontować panele fotowoltaiczne.
W budynku mieszkalnym jednorodzinnym instalacje ogrzewcze, ciepłej wody użytkowej, również
oświetlenia wbudowanego, zostały zaprojektowane w taki sposób, aby ilość ciepła i energii
elektrycznej, potrzebnych do użytkowania budynku zgodnie z jego przeznaczeniem, można było
utrzymać na racjonalnie niskim poziomie.
Opis projektu
W budynku mieszkalnym jednorodzinnym instalacje ogrzewcze, ciepłej wody użytkowej, również
oświetlenia wbudowanego, zostały zaprojektowane w taki sposób, aby ilość ciepła i energii
elektrycznej, potrzebnych do użytkowania budynku zgodnie z jego przeznaczeniem, można było
utrzymać na racjonalnie niskim poziomie.
Wartości współczynników dla poszczególnych rodzajów przegród budowlanych ( min wg 2021 ):
- posadzka na gruncie U=0,30 W/m2K
- ściana zewnętrzna U=0,20 W/m2K
- dach U=0,15 W/m2K
- stolarka okienna U=0,9 W/m2K
- stolarka drzwiowa U=1,3W/m2K
Współczynnik przenikania ciepła dla przegród budowlanych jest zgodny z przepisami techniczno-
budowlanymi.








